豊田市丸山町4丁目2期 新築分譲住宅 全3棟 1号棟

3,990万円

愛知県豊田市丸山町4丁目

愛知環状鉄道「三河豊田」駅徒歩14分

愛知環状鉄道「新上挙母」駅徒歩15分

価格
3,990万円
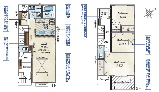
間取り
3LDK
土地面積
104.98㎡
所在地
愛知県豊田市丸山町4丁目
交通

愛知環状鉄道三河豊田」駅 徒歩14分

愛知環状鉄道新上挙母」駅 徒歩15分

建物面積
101.44㎡
築年月
2026年2月(新築)

物件の特徴

  • バストイレ別

  • 室内洗濯機置場

  • TVモニタ付きインターホン

  • カウンターキッチン

  • 浴室乾燥機

セールスポイント

●完成物件の内覧もお気軽にお問合せください●ご家族の思い出も大切にしまっておけるたっぷり収納●使い勝手の良いシステムキッチン●雨の日のお洗濯にも大活躍な浴室乾燥機付。

担当者のコメント

上水流 信

豊田市立山之手小学校が通学範囲内、学校まで徒歩14分!ウォークインクローゼットに収納できる服の数は多いので、服を沢山持っている方におすすめです!お湯を温め直せる追い焚き機能付きです!戸建て物件をご検討なら、コチラの新築の物件をご覧ください!豊田市の愛知環状鉄道三河豊田近郊にある一戸建てをお探しの方は、0564-57-1333からエステート・ラボまで、ご希望の条件をお聞かせください(^^)

基本情報

販売戸数
1戸
総戸数
3戸
間取り / 詳細
3LDK
LDK 19.8帖 1室/洋室 7.8帖 1室/洋室 5.2帖 2室
3LDK+パントリー+カースペース2台
向き
-
建物面積(坪数)
101.44㎡(30.68坪)
土地面積(坪数)
104.98㎡(31.75坪)
建ぺい率 /
容積率
60%/200%
築年月
2026年2月(新築)
駐車場 /
月額料金
有 -
土地権利
所有権
土地
(敷金 / 保証金)
- / -
建物構造
木造 / 2階建
傾斜地部分面積
-
路地状敷地
-
私道負担面積
-
セットバック
-
高圧線下面積
-
施工会社
-
用途地域
第一種中高層住居専用
地目 / 地勢
宅地 / -
接道状況
一方(南東 公道 6.0m)
国土法届出要否
不要
都市計画
市街化区域
総区画数 /
販売区画数
3区画/1区画
現況
完成済み
その他
法令上の制限
宅地造成及び特定盛土等規制法/法22条区域
取引態様
一般媒介
引渡し
相談
取引条件の
有効期限
2026年02月24日

設備条件

設備条件
  • 建設住宅性能評価書付 / 室内洗濯機置場 / フローリング / バルコニー / ルーフバルコニー / 都市ガス / 公営水道 / 公共下水 / 24時間換気システム / 電気有 / インナーバルコニー / 駐車2台可 / ガスコンロ / コンロ2口以上 / 食器洗い乾燥機 / システムキッチン / コンロ3口 / オープンキッチン / カウンターキッチン / バス・トイレ別 / 追焚機能浴室 / 浴室乾燥機 / 温水洗浄便座 / 洗髪洗面化粧台 / トイレ2ヶ所 / 浴室1坪以上 / ユニットバス / 浴室暖房 / 床下収納 / ウォークインクロゼット / 食品庫 / TVモニタ付インターホン / 宅配ボックス / 複層ガラス / ディンプルキー / 住戸内覧可能
設備(その他)
    浄水器内蔵キッチン水栓・リビング階段・設計住宅性能評価取得・長期優良住宅・折り上げ天井

その他

物件番号
98325480
管理コード
-
建築確認番号
第R07SHC119281号
情報更新日
2026年02月10日
次回更新予定日
2026年02月24日
取扱会社
  • 株式会社エステート・ラボ
  • 愛知県岡崎市上地6丁目1番地19 明友ビル101
  • TEL:0564-57-1333
  • 愛知県知事 (3) 第22187号
  • 愛知県宅地建物取引業協会   東海不動産公正取引協議会
備考
●月々の家賃支払いがもったいない、家や土地を購入してお子様に資産を残したい…など
賃貸脱出をお考えの方、エステート・ラボが応援致します!

★★★★★★★★★★★★★★★★★★★★★★★★★★★★★★★★★★★★★
●賃貸と持ち家どっちがお得なの?
●注文住宅と建売はどっちがオススメ?
●住宅ローンでいくらまで借りれるの?
…など
現地や当社で、資金計画や住宅ローンシュミレーションなどのご提案をさせて頂きます。
無料で仮審査をすることも可能ですので、ご安心ください。
★★★★★★★★★★★★★★★★★★★★★★★★★★★★★★★★★★★★★

●現地案内可能!18時以降や平日・土・日・祝日のご案内可能です。
まずはお気軽にお電話ください >>0800-888-5550


【完成前物件】をご検討されている方へ
未完成物件のご購入では、工事中の施工状況をチェックできる場合もあり、
竣工・引越しまでのタイムスケジュールが明確になる等のメリットもございます。
是非お早めにご検討ください。

周辺施設

  • 豊田司郵便局の画像

    郵便局

    豊田司郵便局

    983m(13分)

  • 豊田市立山之手小学校の画像

    小学校

    豊田市立山之手小学校

    1119m(14分)

  • 豊田信用金庫下市場支店の画像

    銀行

    豊田信用金庫下市場支店

    1583m(20分)

  • スギ薬局 元宮店の画像

    ドラッグストア

    スギ薬局 元宮店

    2472m(31分)

支払いシミュレーション

月々の支払額
9.6
購入希望物件価格
万円
頭金
万円
金利
%
返済額(ボーナス1回分)
万円
返済期間

※ボーナスは自動で年2回分で計算されます。

近隣の物件

  1. 豊田市近岡町

    豊田市近岡町吉田

    10DK (211.48㎡)

    1,530万円

  2. 豊田市高上2丁目2期 新築分譲住宅 全2棟 1号棟

    豊田市高上2丁目

    4LDK (106.13㎡)

    3,998万円

  3. 豊田市志賀町高洞 新築分譲住宅 全2棟 1号棟

    豊田市志賀町高洞

    3LDK (104.74㎡)

    3,850万円

  4. 豊田市高上2丁目2期 新築分譲住宅 全2棟 2号棟

    豊田市高上2丁目

    4LDK (105.37㎡)

    4,250万円

豊田市丸山町4丁目2期 新築分譲住宅 全3棟 1号棟

豊田市丸山町4丁目2期 新築分譲住宅 全3棟 1号棟

3,990万円

-

3LDK(101.44㎡)

お気軽にお問い合わせください

LINEからお問い合わせ 無料お問い合わせ

株式会社エステート・ラボ

0564-57-1333

9:30~19:00

(休:水曜日)