豊田市丸山町4丁目2期 新築分譲住宅 全3棟 1号棟

3,990万円

愛知県豊田市丸山町4丁目

愛知環状鉄道「三河豊田」駅徒歩14分

愛知環状鉄道「新上挙母」駅徒歩15分

価格
3,990万円
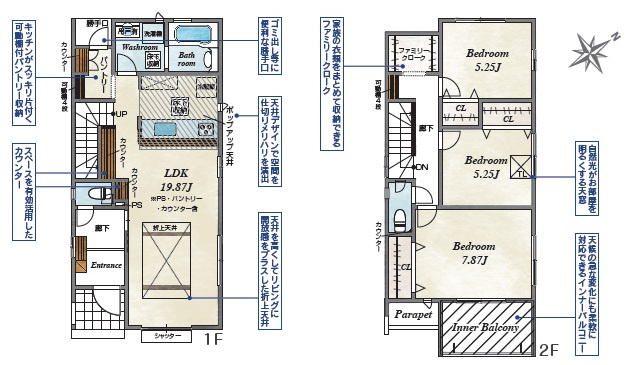
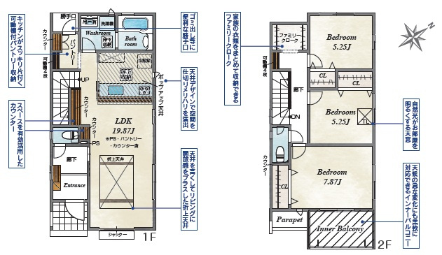
間取り/建物面積
3LDK/101.44㎡
所在地
愛知県豊田市丸山町4丁目
築年
2026年2月(新築)
駐車
交通

愛知環状鉄道三河豊田」駅 徒歩14分

愛知環状鉄道新上挙母」駅 徒歩15分

豊田市丸山町4丁目2期 新築分譲住宅 全3棟 1号棟の基本情報

物件名
豊田市丸山町4丁目2期 新築分譲住宅 全3棟 1号棟
価格
3,990万円
建物面積
101.44㎡
土地面積
31.75坪(104.98㎡)
築年月
2026年2月(新築)
総戸数
3戸
所在地
愛知県豊田市丸山町4丁目
交通

愛知環状鉄道三河豊田」駅 徒歩14分

愛知環状鉄道新上挙母」駅 徒歩15分

豊田市丸山町4丁目2期 新築分譲住宅 全3棟 1号棟の詳細情報

設備条件
  • 建設住宅性能評価書付
  • 駐車2台可
  • 宅配ボックス
設備(その他)
    浄水器内蔵キッチン水栓・リビング階段・設計住宅性能評価取得・長期優良住宅・折り上げ天井
駐車場/月額
有/-
土地権利
所有権
国土法届出
不要
用途地域
第一種中高層住居専用
取引態様
一般媒介
引渡し
相談

豊田市丸山町4丁目2期 新築分譲住宅 全3棟 1号棟で募集中の物件

  1. 30.68坪 (101.44㎡)

    3,990万円(130.05万円/坪)

周辺施設

  • 豊田司郵便局の画像

    郵便局

    豊田司郵便局

    983m(13分)

  • 豊田市立山之手小学校の画像

    小学校

    豊田市立山之手小学校

    1119m(14分)

  • 豊田信用金庫下市場支店の画像

    銀行

    豊田信用金庫下市場支店

    1583m(20分)

  • スギ薬局 元宮店の画像

    ドラッグストア

    スギ薬局 元宮店

    2472m(31分)

近隣の物件

  1. 豊田市近岡町吉田

    10DK (211.48㎡)

    1,530万円

  2. 豊田市高上2丁目

    4LDK (106.13㎡)

    3,998万円

  3. 豊田市志賀町高洞

    3LDK (104.74㎡)

    3,850万円

  4. 豊田市高上2丁目

    4LDK (105.37㎡)

    4,250万円

豊田市丸山町4丁目2期 新築分譲住宅 全3棟 1号棟

お気軽にお問い合わせください

LINEからお問い合わせ 無料お問い合わせ

株式会社エステート・ラボ

0564-57-1333

9:30~19:00

(休:水曜日)